BIM-Anwendungsfälle: Planungsvariantenuntersuchung
März 2021
Ein weiterer Anwendungsfall von Building Information Modeling ist die Untersuchung und Bewertung unterschiedlicher Varianten, um zu einer möglichst effizienten Planung zu gelangen. Erfahren Sie mehr dazu in diesem Beitrag.
Nähert man sich dem Thema Building Information Modeling (BIM), so stellt man schnell fest, dass es sehr viele Bereiche gibt, in denen BIM zur Anwendung kommt. Doch welche BIM-Leistungen kann ich meinem Auftraggeber anbieten? Wie viel Aufwand bedeutet das für mich? Welchen Mehrwert generiere ich durch welche Leistung?
In unserem letzten Blogbeitrag zum Thema BIM-Anwendungsfälle haben wir uns mit der Visualisierung beschäftigt. Heute geht es um die Frage: "Was muss ich tun, damit ich die effizienteste Variante meiner Planung verfolge?"
Ein möglicher Ansatz wäre hier die Planung von verschiedenen Varianten und die anschließende Bewertung dieser. Damit sind wir bei unserem nächsten BIM-Anwendungsfall - der Planungsvariantenuntersuchung.
Damit Sie im Verlauf der Planung nicht mit mehreren Varianten arbeiten müssen, ist es sinnvoll, dass Sie sich möglichst früh für eine Variante entscheiden. Dementsprechend sollte die Planungsvariantenuntersuchung möglichst früh durchgeführt werden, beispielsweise in Leistungsphase 2 gemäß HOAI. Dadurch wird natürlich auch definiert, mit welcher Präzision Sie die Bewertung der Varianten durchführen. Idealerweise erfolgt die Analyse und Bewertung mit dem Fokus auf Kosten und ggf. Termine. Jedoch ist in frühen Leistungsphasen die Detaillierung normalerweise nicht ausgeprägt genug, um eine sehr präzise Angabe machen zu können. Die Planungsvariantenuntersuchung ist dementsprechend hinsichtlich Kosten und Terminen eher grob. Legt man den Fokus eher auf bauliche, funktionale und gestalterische Aspekte, so kann die Planungsvariantenuntersuchung auch schon in frühen Leistungsphasen ein mächtiges Werkzeug sein. Es besteht natürlich auch die Möglichkeit, die relevanten Objekte für die einzelnen Varianten höher zu detaillieren, um präzisere Werte aus der Planungsvariantenuntersuchung zu generieren.
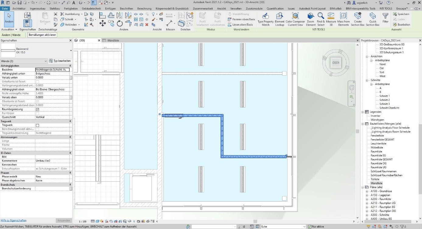
Als praktisches Beispiel haben wir einen kleinen Umbau unseres Firmengebäudes simuliert. Dazu gibt es zwei Varianten für eine Trennwand im Erdgeschoss:


Ein einfacher Vergleich dieser beiden Varianten lässt sich bereits über die benötigten Materialien erreichen. Dazu kann man die Wände mit einem Kommentar versehen und anschließend in der Wandliste nach Kommentaren filtern:

So werden einem, je nach Variante, die entsprechenden Volumina ausgegeben:


Dadurch wird ersichtlich, dass für Variante 1 weniger Material benötigt wird, nämlich nur 3,28 m³ gegenüber den 3,94m³ von Variante 2.
Diese Herangehensweise können Sie auch für deutlich größere Vorhaben, bei denen das Ergebnis nicht derart vorhersehbar ist, nutzen. Weiterhin kann neben dem Volumen auch das Bauteil an sich genutzt werden, um dieses für eine Kostenermittlung heranzuziehen. Das ist beispielsweise mit DBD-BIM möglich. So wird ersichtlich, dass durch den geringeren Materialeinsatz sowohl geringere Kosten als auch geringere Arbeitszeiten für die Herstellung der Wand zustande kommen.


Egal wie Sie die Variantenuntersuchung durchführen - sie führt auf jeden Fall zu einem besseren Verständnis der Planung und vor allem zu einer objektiveren Bewertung der möglichen Varianten. Dabei können Sie deutlich komplexere Sachverhalte untersuchen.
Die Planungsvariantenuntersuchung ist ein relativ einfacher Anwendungsfall. Es ist zu beachten, dass die untersuchten Modelle meist grob modelliert sind und gegebenenfalls noch weiter detailliert werden müssen. Dementsprechend sollten Sie Mengen und Kosten nicht als finalen Wert ansehen. Weitere Anwendungsfälle werden wir Ihnen in Zukunft hier auf diesem Blog vorstellen.
Ihr Ansprechpartner
Customer Success
Chemnitz
+49 371 4000 70-719
